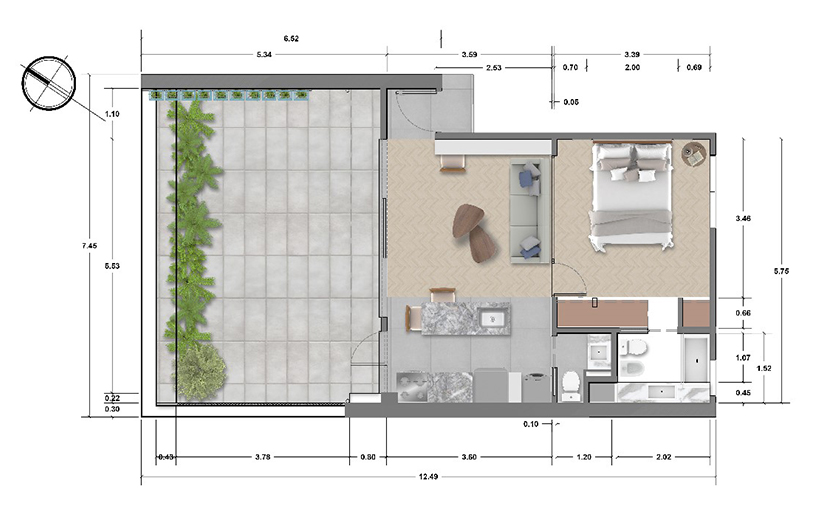
Olivos, Vicente López
2018 - Renovations
Total recovery 80 m2 Rooftop
2018 - Renovations
Total recovery 80 m2 Rooftop







All the strategies of use of space and the use of materials with sustainability criteria.
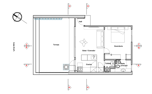
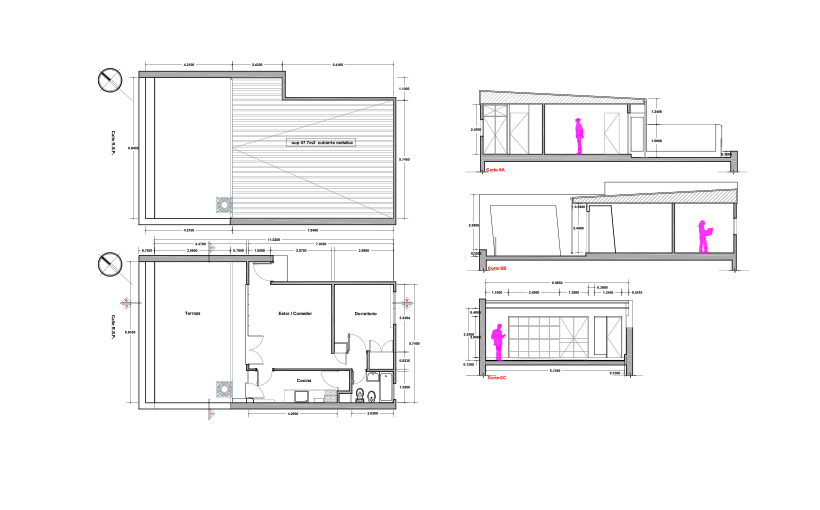
Original





Our objective from the start was to reclaim the original antique wood flooring. To raise awareness and to design from recycled materials.

Space layout prior to the reform.
